2019 | Städtebaulicher Entwurf "Zylinderhof III"
Stadt Eppingen
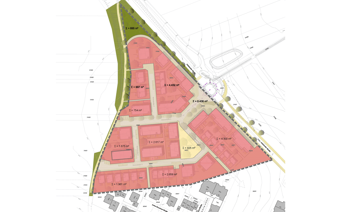
Plangebiet: 2,73 ha
Planung: 2019
Wohneinheiten: 154 WE
Erläuterung:
- Gliederung des Baugebiets in drei Nachbarschaftsquartiere (Ost, West, Nord) mit raumbildenden Geschossbauten und verdichtetem Flachbau als besondere Wohn- und Eigentumsform.
- Alle Wohnsituationen haben eine Straßenadresse und private Zugänge in die Wohnhöfe. Alle Hauszugänge und Parkierungsanlagen sind barrierefrei konzipiert. Die Grundrisse sind in der Regel als „Durchwohner“ geplant, der Lärmschutz zur Adelshofer Straße ist grundrisslich und baulich gewährleistet (baulicher Lärmschutz).
- Die Erdgeschosse liegen, topografisch bedingt meist erhöht (Terrassen für die Erdgeschosswohnungen), die Aufzüge erreichen als „Durchlader“ jede Ebene.
- Die städtebauliche Struktur kann in 10 autarke Bauabschnitte und Projektbereiche (Gebäude, Parkierung und Freiraum) gegliedert und realisiert werden.
- Dadurch könnte über konkurrierende Planungen und unabhängige Bewertungen
- Die Gebäude- und Hausvorbereiche an der Adelshofer Straße liegen an einer, in Zukunft wichtigen, Stadtstraße, eine planerische Rückseite (Abseite) muss hier vermieden werden.
- Die drei Stadtquartiere beinhalten jeweils ein Spektrum an unterschiedlichen Bau- und Wohnformen. Im Kontrast zu dem Geschossbauten werden besondere, kleinteilige Bau- und Eigentumsformen vorgeschlagen, z.B. als Gartenhofhäuser (Grundstück 150m², WF 130m²) in modularer Bauweise mit der Chance günstiger Kosten, z.B. als Förderprogramm der Stadt Eppingen für junge Familien.
- Das IV-Erschließungsnetz ist einfach und übersichtlich. Der Parkierungsschlüssel beträgt für den Geschossbau 1,5 Stpl./WE (noch ohne Differenzierung der Wohnungsgrößen), diese werden komplett in zugeordneten Tiefgaragen nachgewiesen. Für den Flachbau (Gartenhof-, Ketten-, Reihen-, Doppelhäuser) beträgt der Schüssel 2,0 Stpl./WE.
- Generell sollte die Fahrgeschwindigkeit innerhalb des Baugebiets 30 km/h ab dem Kreisverkehr betragen, da hier Radfahrer im Straßenbereich mitfahren können. Das Planungsgebiet sollte durch einen sicheren und attraktiven Radweg mit der Stadtmitte verbunden werden. Eine Bushaltestelle i.V. mit dem südlichen Wohngebiet erscheint prüfenswert.
- In den drei Nachbarschaftsquartieren könnten jeweils öffentliche Elektroladestation oder in den Garagen als private Maßnahme eingerichtet werden.
- Für die Wärme- und Energieversorgung sind fundierte Einschätzungen im frühen Planungsstadium hilfreich (z.B. zur Nutzung regenerativer Energien, wie Erdwärmesonden).
- Für eine soziale Balance der zukünftigen Einwohnerschaft und als Anstoß für bezahlbaren Wohnraum i.V. mit kommunaler Bodenpreisgestaltung, könnte durch eine Verpflichtung bei der Projektentwicklung ein Anteil für mietgünstigen Wohnraum festgelegt werden (entsprechend dem Münchener-Modell).
- Zwischen dem Wohngebebiet Richard-Wagner-Straße und dem Neubaugebiet Zylinderhof III besteht eine markante Baugebietslücke. In einer Skizze ist eine integrative und verbindende Baustruktur dargestellt.










